Commercial New Construction | Grand Junction, CO | Under Construction
Client: Roice-Hurst Humane Society
Contractor: TBD
Structural Engineer: Lindauer Dunn
Civil Engineer: Austin Civil Group
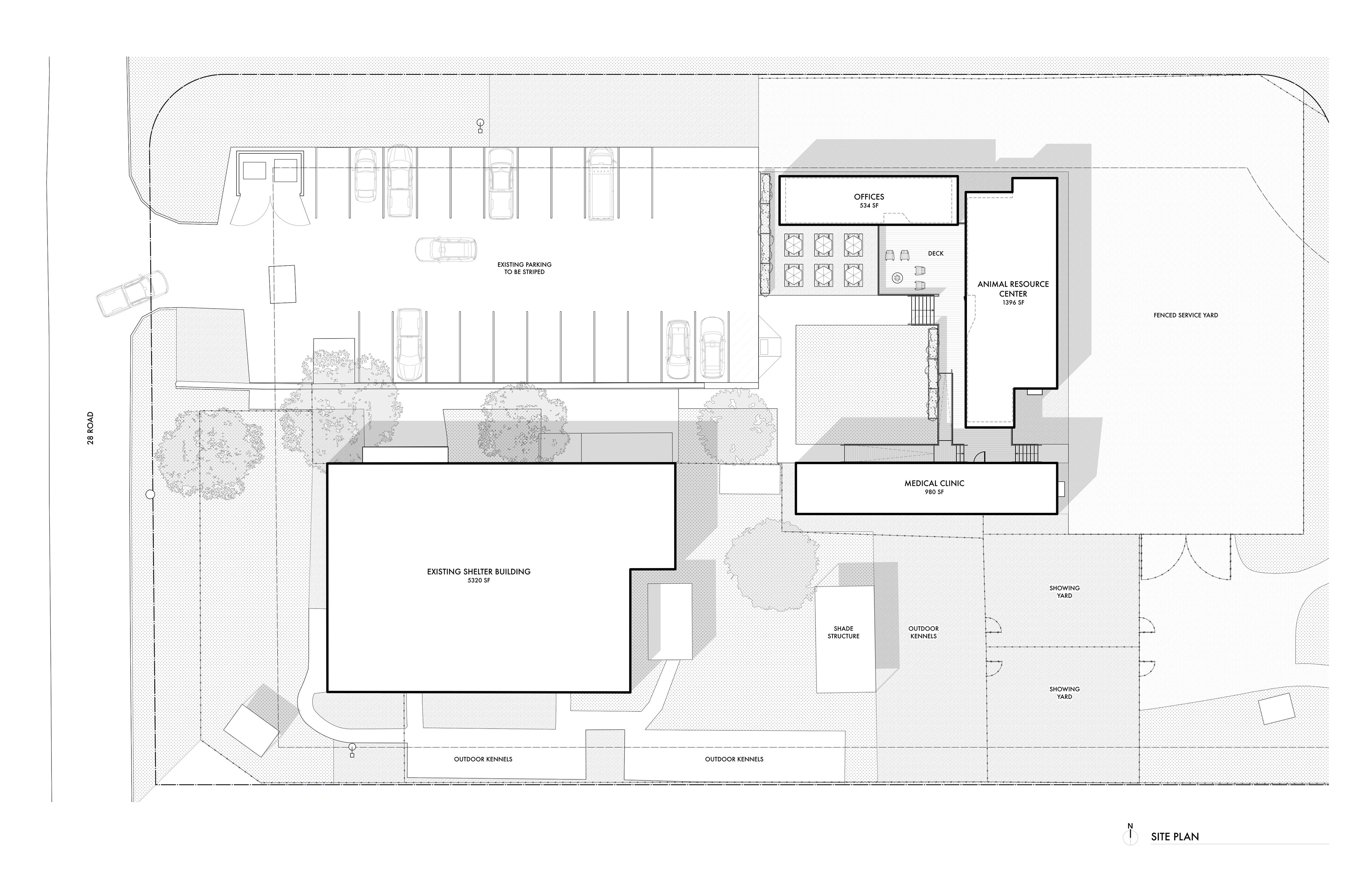
The Roice-Hurst project expands their existing animal care campus through the addition of three modular buildings, bringing shelter and administrative functions together on a single site. The project is organized as a cohesive campus with shared outdoor space and accessible connections that support both day-to-day operations and the organization’s broader mission.
A primary focus of the work was the overall site layout — coordinating the placement of three distinct structures while maintaining a sense of cohesion across the site. The final strategy balances circulation, accessibility, and program relationships, creating a framework that feels intentional rather than incremental. This required close coordination with Mesa County Planning and Building departments, addressing zoning, access, fire, and utility requirements while navigating evolving conditions, including easement vacation and ongoing site adjustments.
Delivered on an accelerated timeline, the project involved continuous coordination and adaptation as requirements developed. Our role included site planning, permitting, and coordination with consultants and the project team, with an emphasis on maintaining clarity through the approval process and organizing the campus in a way that supports both current use and future growth.