Feasibility Study  |  Palisade, CO  |  2025
This project evaluated the development potential of a constrained infill site in downtown Palisade, exploring a mixed-use residential and commercial building within zoning, parking, and access limitations.
The study was intended as a focused, early investment to answer the larger question of financial feasibility. The work tested site layout, massing, and program organization, balancing unit count, parking requirements, and building height while incorporating preliminary code and fire separation analysis to understand realistic constraints.
The process also included high-level cost modeling and coordination with the project team, allowing design options to be evaluated against budget and constructability. The work clarified key constraints and trade-offs, providing a clear basis for decision-making and helping the client determine whether further investment in the project was warranted.
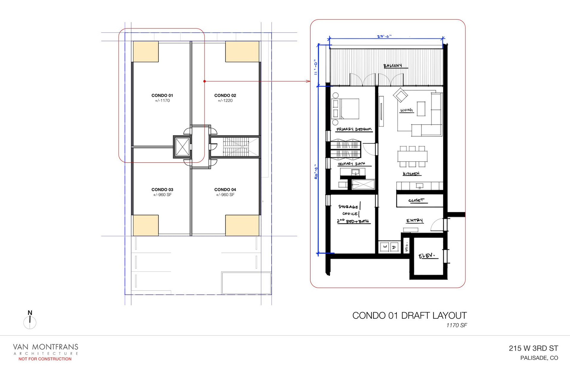
The following drawings are selected from the final feasibility study package.

MORE PROJECTS

Back to Top