Infrastructure  |  Snowmass, CO  |  2025
Client: Pitkin County
Structural Engineer: Lindauer Dunn

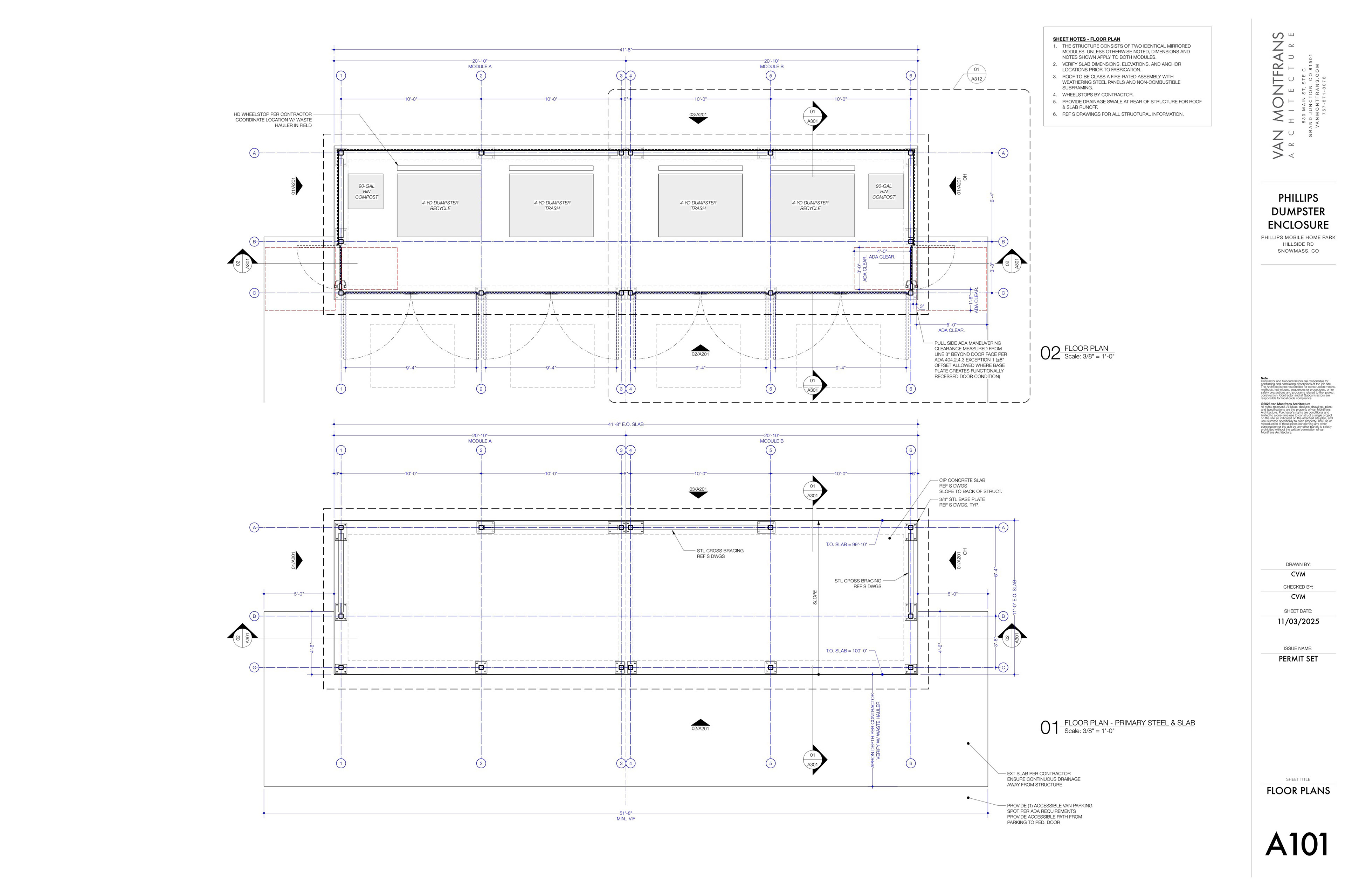
This project consists of a relocatable, bear-resistant dumpster enclosure designed for a residential community in Snowmass, Colorado. Developed in coordination with Pitkin County, the design responds to strict requirements for wildlife protection, durability, and long-term maintenance, while accommodating waste hauler access and site constraints.
The enclosure is conceived as two prefabricated steel modules, fabricated off-site and installed on concrete slabs. The structure was designed to be relocatable, requiring close coordination with the contractor and structural engineer to resolve lifting, anchorage, and reinstallation while maintaining alignment with slab tolerances and door operation. Weathering steel panels and a simple, robust frame create a durable, low-maintenance assembly suited to heavy use and exposure.
While small in scope, the project reflects a focus on clarity and constructability — resolving a highly constrained problem into a straightforward, durable system that performs reliably over time.
The following are selected sheets from the permit set. 

MORE PROJECTS

Back to Top